Ricerca rapida
-
-
CERCA

Alzate Brianza

4 o più locali

Eleganti soluzioni abitative in classe energetica A3, situate in una posizione privilegiata, si trovano in un’area verde antistante il centro, garantendo tranquillità senza rinunciare alla comodità dei servizi. Ottima esposizione e conformazione pianeggiante, ideali per un comfort abitativo superiore. Un’opportunità perfetta per chi cerca efficienza energetica, benessere e qualità della vita.
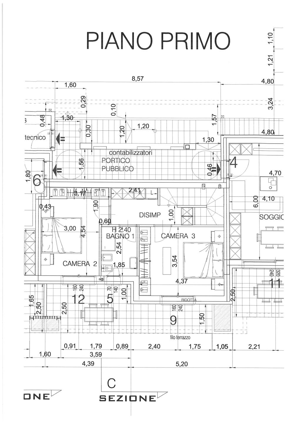
Il progetto prevede una moderna ed elegante palazzina composta di 6 unità e comprensiva di bilocale, trilocale e quadrilocale al piano terra con giardino e bilocale, trilocale e quadrilocale al piano primo con terrazzi. Tutti gli appartamenti avranno a disposizione con autorimesse singole o doppie.
APPARTAMENTO DUPLEX CON GIARDINO: piano terra composto da: soggiorno con cucina a vista, camera da letto, disimpegno, bagno, possibilità di creare ampia zona giorno composta da: soggiorno e cucina abitabile separata,. Area esterna composta da porticato e giardino privato. Scala interna che conduce al piano primo composto da: ampio disimpegno, 2 camere da letto matrimoniali, bagno e terrazzo.. 2 Autorimesse Prezzo €. 370.000,00 + iva

Caratteristiche

Codice
DUPLEX ALZATE
Prezzo
370.000,00 EUR
Mq
125
Classe
A3
Locali
4
Camere
3
Bagni
2
Box
2
Mq Box
30
Mq Giardino
50
Stato Immobile
Prossima Realizzazione
Grado
Signorile
Panorama
Vista Aperta
Totale Piani
Due
Lati Liberi
2
Giardino
Privato
Tipo Soggiorno
Soggiorno
Tipo Riscaldam.
Pompa di Calore
Tipo Impianto
Pavimento
Raffrescamento
Predisposizione
Infissi
PVC Triplo Vetro
Pavim. Giorno
Gres Porcellanato
Pavim. Notte
Gres Porcellanato
Pavim. Cucina
Gres Porcellanato
Pavim. Bagno
Gres Porcellanato
Accessori
Cancello Elettrico, Impianto Fotovoltaico, Impianto Satellitare, Passaggio Automobilistico, Passaggio Pedonale, Porta Blindata, Video Citofono

MAPPA

VIA VALISETTA , Alzate Brianza (CO)
Richiedi informazioni
Codice:
Nominativo: *
Telefono: *
Email: *
Dettagli richiesta: *
Autorizzo il trattamento dei miei dati personali in base Regolamento UE n. 679/2016 - Privacy Policy
Invia
Cookie preference