Ricerca rapida
-
-
CERCA

Canzo
CANZO PROSSIMA REALIZZAZIONE IN A3

3 locali

Scopri il tuo nuovo appartamento a Canzo!
In prossima realizzazione, proponiamo eleganti appartamenti con finiture di alta qualità e possibilità di personalizzazione.
Tutti gli appartamenti sono dotati di:
- Terrazzo o giardino
- Autorimessa
- Classe energetica A3 (valore di progetto 33,87 kWh/m2a)
- Serramenti in PVC a taglio termico con tapparelle motorizzate in alluminio coibentato
- Portoncino blindato antisfondamento
- Impianto di riscaldamento a pavimento con pompa di calore aria/acqua
- Predisposizione per la climatizzazione estiva con raffrescamento a pavimento
- Impianto fotovoltaico
- Impianto di trattamento aria (VMC)
- Impianto induzione per uso domestico
- Impianto videocitofono
- Predisposizione impianto allarme
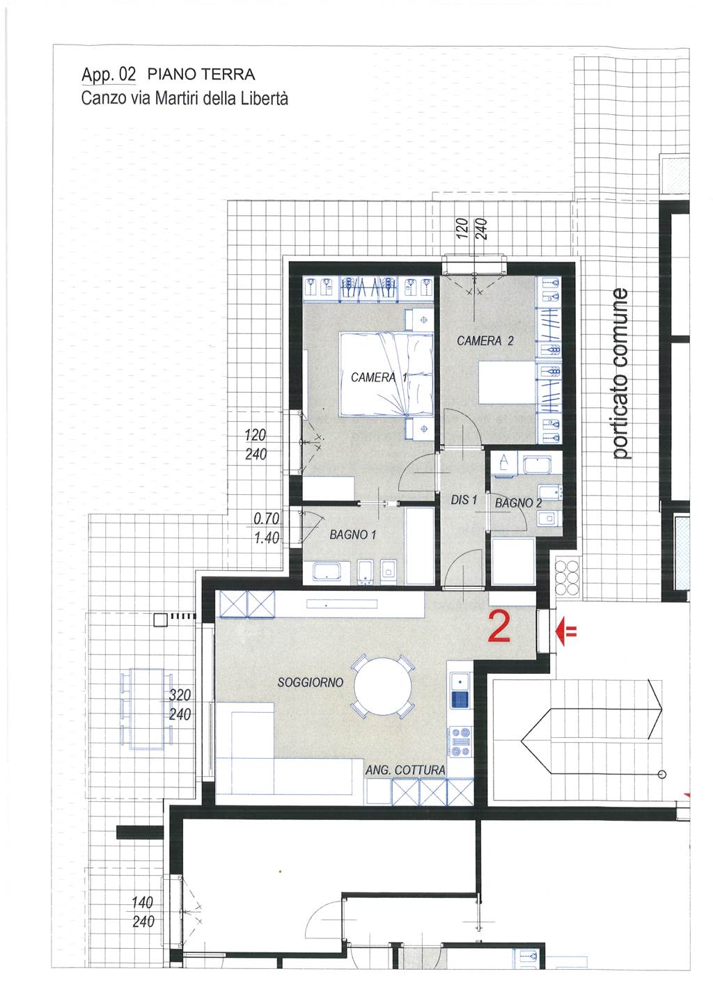
TIPOLOGIA TRILOCALE PIANO TERRA 02: ingresso, soggiorno con cucina a vista e uscita sul portico coperto, disimpegno notte, camera matrimoniale, seconda camera, 2 bagni, giardino privato. Autorimessa. Prezzo: €. 275.000,00 + iva.
Contattaci per scoprire di più e prenotare la tua visita, non perderti questa occasione!

Caratteristiche

Codice
CANZO 02
Prezzo
275.000,00 EUR
Mq
82
Classe
A3 (33,87 [kWh/m²a])
Locali
3
Camere
2
Bagni
2
Box
1
Mq Box
16
Mq Giardino
105
Stato Immobile
Prossima Realizzazione
Grado
Signorile
Panorama
Vista Aperta
Totale Piani
Due
Lati Liberi
2
Giardino
Privato
Tipo Soggiorno
Soggiorno
Tipo Cucina
A Vista
Tipo Impianto
Pavimento
Accesso Disabili
Nessuna Barriera
Isolamento
Presente
Isolamento termico
Cappotto esterno
Isolamento acustico
Isolamento completo
Accessori
Ascensore

MAPPA

VIA MARTIRI DELLA LIBERTA' , Canzo (CO)
Richiedi informazioni
Codice:
Nominativo: *
Telefono: *
Email: *
Dettagli richiesta: *
Autorizzo il trattamento dei miei dati personali in base Regolamento UE n. 679/2016 - Privacy Policy
Invia
Cookie preference