Ricerca rapida
-
-
CERCA

Canzo
CANZO PROSSIMA REALIZZAZIONE IN A3

4 o più locali

Scopri il tuo nuovo appartamento a Canzo!
In prossima realizzazione, proponiamo eleganti appartamenti con finiture di alta qualità e possibilità di personalizzazione.
Tutti gli appartamenti sono dotati di:
- Terrazzo o giardino
- Autorimessa
- Classe energetica A3 (valore di progetto 33,87 kWh/m2a)
- Serramenti in PVC a taglio termico con tapparelle motorizzate in alluminio coibentato
- Portoncino blindato antisfondamento
- Impianto di riscaldamento a pavimento con pompa di calore aria/acqua
- Predisposizione per la climatizzazione estiva con raffrescamento a pavimento
- Impianto fotovoltaico
- Impianto di trattamento aria (VMC)
- Impianto induzione per uso domestico
- Impianto videocitofono
- Predisposizione impianto allarme
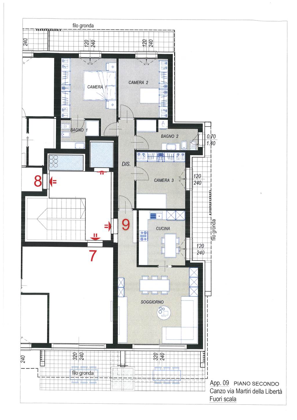
TIPOLOGIA QUADRILOCALE PIANO SECONDO 09: ingresso, soggiorno con terrazzo, cucina abitabile e uscita su ampio balcone, disimpegno notte, camera matrimoniale con bagno, seconda camera, terza camera, bagno. Tutte le camere con uscita sul balcone. Autorimessa. Prezzo: €. 370.000,00 + iva.
Contattaci per scoprire di più e prenotare la tua visita, non perderti questa occasione!

Caratteristiche

Codice
CANZO 09
Prezzo
370.000,00 EUR
Mq
122
Classe
A3 (33,87 [kWh/m²a])
Locali
4
Camere
3
Bagni
2
Box
1
Mq Box
17
Mq Balcone
15
Stato Immobile
Prossima Realizzazione
Grado
Signorile
Panorama
Vista Aperta
Totale Piani
Due
Lati Liberi
2
Tipo Soggiorno
Soggiorno
Tipo Cucina
Abitabile
Tipo Impianto
Pavimento
Accesso Disabili
Nessuna Barriera
Isolamento
Presente
Isolamento termico
Cappotto esterno
Isolamento acustico
Isolamento completo
Accessori
Antifurto, Ascensore, Impianto Fotovoltaico, Porta Blindata, Video Citofono

MAPPA

VIA MARTIRI DELLA LIBERTA' , Canzo (CO)
Richiedi informazioni
Codice:
Nominativo: *
Telefono: *
Email: *
Dettagli richiesta: *
Autorizzo il trattamento dei miei dati personali in base Regolamento UE n. 679/2016 - Privacy Policy
Invia
Cookie preference